• Inicio
  • Propiedades
  • Vender o rentar
  • Financiamiento
  • Inversión
    • Puebla
    • Yucatán
    • Riviera Maya
    • España
    • Otras Ciudades
  • Inicio
  • Propiedades
  • Vender o rentar
  • Financiamiento
  • Inversión
    • Puebla
    • Yucatán
    • Riviera Maya
    • España
    • Otras Ciudades

Casa en Haras del Bosque

Bosque de las Luces, Haras del Bosque, Pue.

PREVENTA

$4,700,000

See All Photos (5)

ID:

 NK-HA073-EN40

Recámaras
3
Baños
3.5
M² Construcción
250 m2
M² Terreno
300 m2
Estacionamientos
2

Descripción

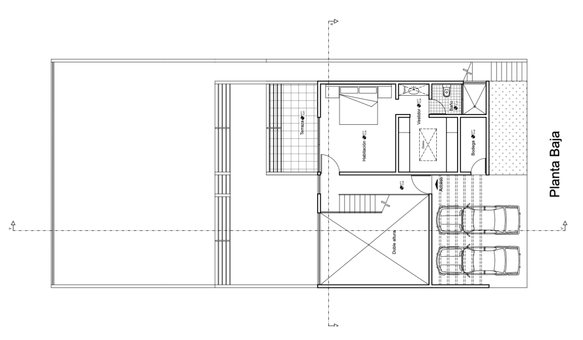
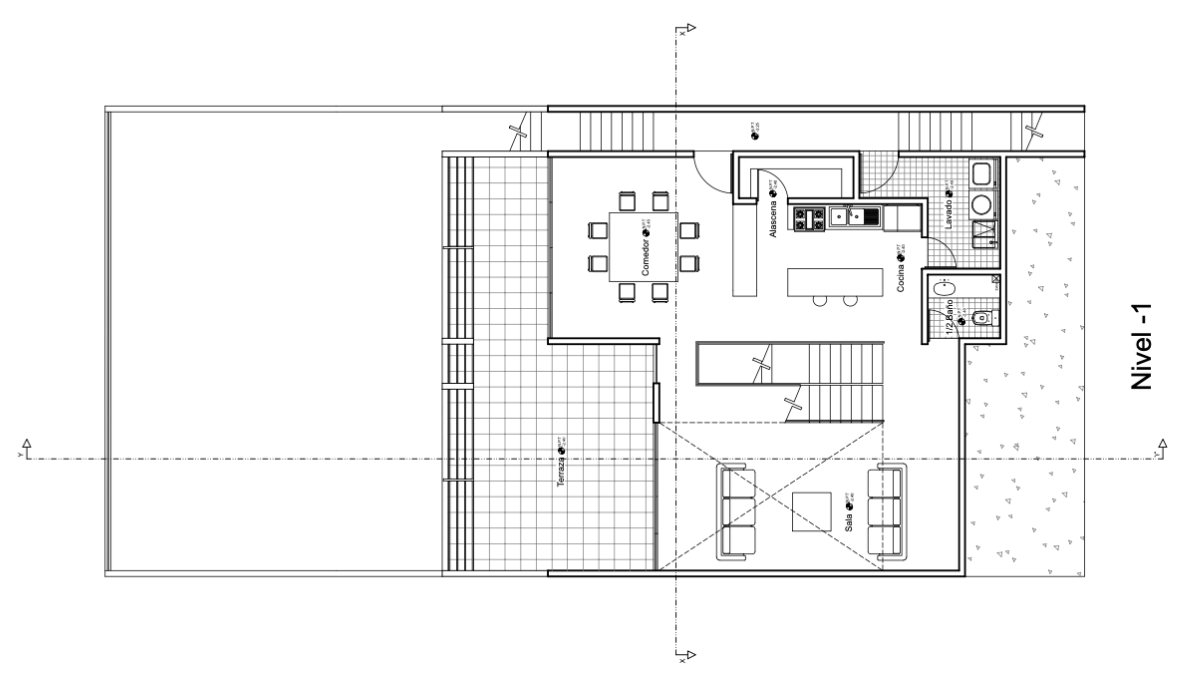
Hermosas casas con diseño único en Bosque de las Luces a 4min. del Hípico de Haras y a 5min. del Colegio Teresiano. Las casa cuentan con 250m2 de construcción y esta distribuida en 3 niveles. En la planta baja encontramos habitación con vestidor y baño, terraza y jardín; en el primer nivel se ubica sala-comedor, cocina con isla, baño de visitas y área de lavado; finalmente en el segundo nivel encontramos las dos habitaciones secundarias casa una con su baño.

Características

  • Area de lavado
  • Habitación en Planta Baja
  • Jardin
  • Terraza

Amenidades

  • Áreas verdes: ✓
  • Casa club: ✓
  • Hípico: ✓
  • Restautante: ✓
  • Seguridad 24 horas: ✓

Planos

Planta baja

Planta baja

Primer piso

Primer piso

Segudo piso

Segudo piso

Mapa

Contáctenos ahora

Propiedades Destacadas

4
Destacado ⭐
PREVENTA

Desarrollo de lotes en Cuautlancingo

Punta Mita Residencial, Cuautlancingo, Pue.
Added: noviembre 12, 2025
M² Construcción
127 m2
Antigüedad
0 años
PREVENTA

desde $956,000

28
Destacado
VENTA

Desarrollo en Lomas de Angelópolis

Parque Aspen, Lomas de Angelópolis, Santa Clara Ocoyucan, Pue.
Added: enero 9, 2025
Recámaras
3
Baños
3
M² Construcción
122 m2
M² Terreno
104 m2
Estacionamientos
2
VENTA

desde $3,080,000

23
Destacado
VENTA

Departamentos Torre Helea

Atlixcáyotl, Reserva Territorial Atlixcáyotl, Puebla, Pue., México
Added: junio 23, 2023
Recámaras
3
Baños
3.5
M² Construcción
272 m2
Estacionamientos
2
VENTA

desde $13,921,000

logo Nockin Blanco

Servicios

Comprar
Vender
Créditos Hipotecarios

 

 

 

Nosotros

Contacto
Preguntas Frecuentes
Nuestros Clientes
Blog

Logo facebook Logo tik tokLogo linkedin

Legal

Aviso de privacidad
NOM 247
Terminos y Condiciones

© Todos los derechos reservados.

Diseñado por Nockin

Nockin – Venta de propiedades
  • Ingresa en
¿Olvidó la contraseña?

OTP Verification

Please enter the 6-digit OTP sent to your email.

Time remaining: 05:00